
Haber: Mehmet KORKUSUZ
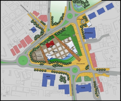
Yer altında su, kanalizasyon ve yağmurlama hattı döşeme ve yenileme çalışmalarını tamamlayan, ardından asfaltlama harekâtı başlatan Bolu Belediyesi önümüzdeki günlerde de yoğun çalışma temposunu sürdürecek. Belediye Başkanı Alaaddin Yılmaz tarafından gündeme getirildiği andan itibaren defalarca demokratik ortamlarda tartışmaya açılan ve sivil toplum kuruluşlarının görüşlerine başvurulan Kent Meydanı ve Kültür Park Yeraltı Katlı Otopark Projelerinin hayata geçirilmesi için düğmeye basıldı. Başkan Yılmaz’ın yapımı konusunda ısrarlı tavır sergilediği çılgın projelerden Kültür Park için ihale kararı alındı. Bu proje için 5 Temmuz’da ön yeterlilik ihalesine çıkmayı planlayan Belediye’nin Kamu İhale Kanunu’nun 20’nci Maddesi’ne göre yapacağı ihalede Belediye yetkilileri yeterliliği kabul edilen firmalarla 16 Ağustos’ta bir kez daha ihale masasına oturacak.
YILMAZ’IN “DERHAL YAPILSIN” TALİMATIYLA KÜLTÜR PARK İÇİN İHALE TARİHİ BELİRLENDİ
Bin 500 araç kapasitesinde olması beklenen proje için tercih edilen Fırka Tepesi, üzerinde Geç Roma dönemine ait birçok toplu mezar ve buluntular bulundurması nedeniyle tartışmalara konu olmuştu. Mimarlar Odası’nın yapılmamasından yana defalarca açıkça tavır sergilediği, hatta yürütmeyi durdurmak üzere yargı girişiminde bulunduğu projenin hayata geçmesi halinde İzzet Baysal Caddesi ve çevresindeki otopark ihtiyacının ortadan kaldırılması hedefleniyor.
KENT MEYDANI PROJESİ İÇİN SON VİRAJA GİRİLDİ
Öte yandan Bolu Belediyesi’nin yoğun çalışmalar sürdürdüğü ve artık sona yaklaştığı bir başka projede Kent Meydanı. Trafiğin kapatıldığı ve yeni bölgelerin dahil edildiği Kent Meydanı için oluşturulan avam projesi Ankara Kültür ve Tabiat Varlıklarını Koruma Bölge Kurulu Müdürlüğü’nce onaylanmış durumda. Sokaktaki vatandaşın nefes alabileceği modern ve mimari bir alan oluşturulmak üzere startı verilen projenin çok yakın bir süre içinde tamamlanacağı ve uygulamaya geçmek üzere ihale tarihinin belirleneceği bildirildi.
İZZET BAYSAL CADDESİ’NDE ARTIK OTOPARK BULUNMAYACAK
Belediye’nin bu iki proje ile paralel gerçekleştirmek istediği bir başka girişim ise İzzet Baysal Caddesi üzerinde olacak. Trafik keşmekeşliğinin yanı sıra otopark sorunuyla da eleştiri yağmuruna tutulan bölgenin otoparklardan arındırılması gündemde. Uygulamayla bölgede trafik yoğunluğunu azaltmayı planlayan Belediye’nin bu uygulama için sürdürdüğü hazırlıklarda sona geldiği ve girişim için start vermeye hazırlandığı öğrenildi. Sadece sürücülerin kullanabileceği alanın trafiğe açık olacağını belirten yetkililer, otoparkların kaldırılmasıyla yaya ulaşım alanlarında artış sağlanabileceğini söyledi.






























Fuat Bayramoğlu
LİDERİ YENMEK, GALİBİYETLERİN EN GÜZELİ
Fatma Marmara
CUMHURİYETİMİZİN 100. YILI KUTLU OLSUN
Mehmet İşgörücü
YÜZÜNCÜ YILDA BOLU’DA TİYATRO
Ayşe KUDU
BİLİNÇALTIMIZIN TRAFİK HALİ
Duygu Güler
HOŞGELDİN ATAM
Hikmet Baydar
DÖVİZDE SON DURUM..
Tahir Semih Özçelik
VİZYON VE İNOVASYON
Rahmi Tamer Özçelik
PİŞMANLIK
Genc-i Nihan
GLOBALLEŞEN DÜNYADA NORMALLEŞEN TERİM ‘FAİZ’
Ekrem Çetinkaya
YATA YATA
Fevzi Saçlı
ÇÖPE ATILMA KORKUSU SARDI BENİ
Kemal Bilsel Sarısözen
MAKULU GÖREMEYEN DÜŞÜNCENİN,NE ÖNÜNDEN, NE DE ARKASINDAN GİDİLİR
Mehmet Korkusuz
KORKUSUZ YORUM
Fatma Kubilay
TÜRKMENLER’İ YALNIZ BIRAKMAYALIM….
M. Cengiz Poyraz
MİRAP MI, SAHNE Mİ? CÜBBE Mİ, KOSTÜM MÜ ?
Ebru Eyvazoğlu
AK PARTİ, CEMAAT VE BİZ
Dr.Ahsen SAÇLI
ENERJİDE TOPLUMSAL MALİYET
Murat Çelik
Bolu’nun şovmen vekilleri!